STAGED, STYLED AND SOLD BY CAPE COD RESIDENTIAL
LOWSET FAMILY LIVING IN BLUE CHIP CLAYFIELD
Perfectly positioned, in a highly-coveted pocket of wide leafy streets and beautiful character homes, this renovated lowset family home offers everything you could need as a growing family or an investor.
This is inner-city living at its finest, being mere walking distance to Kalinga Park and the Kedron Brook Bikeway, moments from rail and bus transport, quality schools and local conveniences, and minutes to major arterial roads.
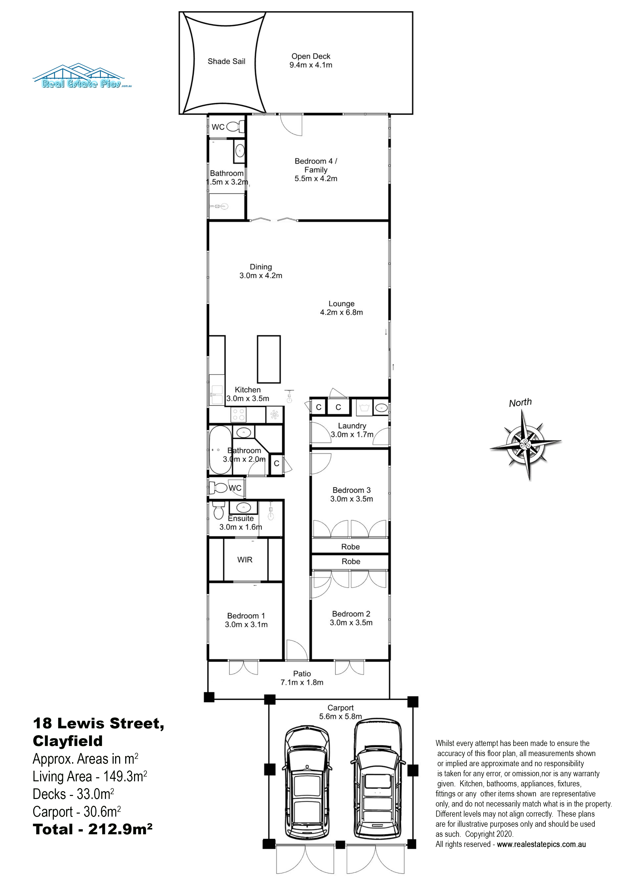
With the luxury of all living on the one level, this appealing residence offers great functionality, with a highly versatile floor plan.
A generously-sized open-plan living and dining space centres around a modern kitchen, with 3 bedrooms ideally positioned at the front of the home and the 4th bedroom (and second ensuite) at the rear of the home that could be conveniently purposed as a spacious second living area if required.
A fresh light palette greets you on entry and the long hall leads you past 3 spacious bedrooms, all with built-in robes. They are serviced by a family bathroom with bath and separate toilet.
The master bedroom enjoys a walk-through robe to the ensuite, and French doors which open onto the front porch overlooking the garden … a perfect spot for your morning coffee.
The inviting central living areas are bathed in natural light and provide ample room for relaxed family living and even a home office nook.
The functional kitchen is the hub of the home and features quality appliances, great storage and a convenient breakfast bar that connects seamlessly to the living and dining areas … providing an opportunity to supervise homework during afternoon tea time!
Beyond the living spaces, the home flows to a separate 4th bedroom or living room at the rear of the property,
Serviced by a full bathroom, this is a perfect teenage retreat, guest quarters or second living space. This versatile space opens onto a very private timber entertaining deck that would be ideal for safe children’s play or for enjoying the company of family and friends.
Features At A Glance:
* Quality renovated brick and tile lowset home in Blue Chip Clayfield
* 4 bedrooms (2 ensuited), 3 modern bathrooms
* 2 spacious living spaces (or option for 4th ensuited bedroom)
* Modern kitchen with good storage, quality appliances and a convenient breakfast bar
* Timber entertaining deck and level lawns for child’s play
* Air-conditioned
* Ample storage throughout the home
* Internal laundry
* 2 car accommodation
* Low maintenance, fully fenced 405m2 block, with established gardens
This immaculate, family-friendly home has it all! 2 ensuited bedrooms, spacious living areas, entertaining spaces and plenty of storage.
Conveniently located just 7 km from the Brisbane CBD and situated in the highly coveted Eagle Junction State School catchment zone, this is location buying at its best, and with easy access to the Airport link, Inner City Bypass and major arterials and moments from Toombul Shopping, train and local bus services, everything is within easy reach!
Open for the first time this coming Saturday 29th August, at 10am.
Hurry, this gem will not last!
Email agent about 18 Lewis Street, CLAYFIELD QLD 4011

























































