STAGED, STYLED & SOLD BY CAPE COD RESIDENTIAL
ELEVATED AND ENVIABLE FAMILY LIVING
Looking for an immaculate family home on a lovely large block?
This inviting property redefines the words, ‘Just Move In’.
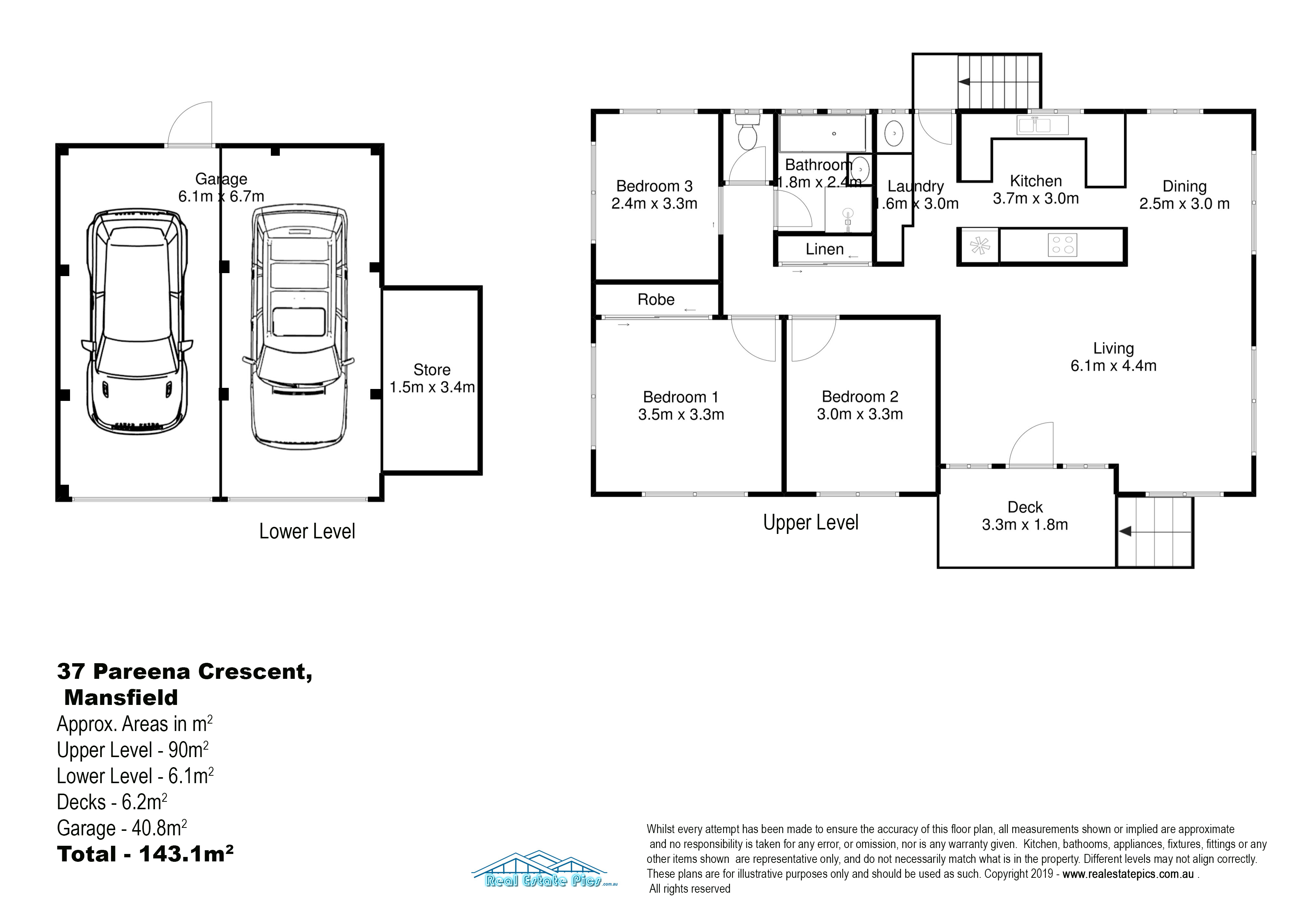
Set on a glorious 582 sqm of child-friendly grounds, this ‘as new’ and charming high-set 3 bedroom home is perfect for a family looking for space, location and lifestyle.
Enjoy the elevated and leafy views as you walk up the front steps to the quaint porch; the perfect spot to enjoy your cuppa accompanied by the morning birdsong. Enter into a spacious and light-filled living room featuring lush new carpets, a neutral colour palette, ornate cornices and stylish white timber shutters. This inviting space seamlessly transitions through to the open-plan dining room and modern kitchen.
The sparkling kitchen, in the heart of the home, is perfectly positioned to keep an eye on children playing in the backyard, and will be sure to impress you with its satin-finish cabinetry, 40mm stone bench-tops, under-mount sink, white subway tile splash-back, ample bench space, soft-close hinges, stainless steel appliances and gas cooktop. Modern glass and concrete pendants light up the breakfast bar featuring a stone waterfall edge and striking VJ feature panel.
The kitchen is adjoined by the functional and stylish separate laundry, featuring ample storage, a gorgeous timber bench, VJ feature doors and easy access out to the backyard.
Bedrooms are located off a private hallway, allowing for great separation of living and privacy.
The spacious master bedroom features air-conditioning and a large built-in-robe. Bedrooms are serviced by a large and modern family bathroom and separate toilet. Enjoy a soak in the oversized tub or the luxury of the rainfall showerhead in the seperate shower.
With a large linen press in the hallway, this home features a multitude of storage spaces for all your family’s needs.
Watch the children play under the shade of the established macadamia nut tree in the expansive, low maintenance backyard. Fully-fenced, with its very own little vegetable garden complete with tomato plants, basil, marigolds and strawberry plants, it is mulched and ready to go!
Features:
• 3 bedrooms upstairs, all with new carpets
• Master bedroom suite with large built-in robe
• Main bathroom with separate shower and bathtub
• Spacious living room with reverse cycle air-conditioning
• Open plan kitchen / dining room
• Kitchen with quality stainless steel appliances and soft-close hinges
• Internal laundry with ample storage and rear yard access
• Re-conditioned tiled roof & ceiling insulation
• Airconditioned
• Extensive storage: large upstairs linen cupboard, built in wardrobe to the master, linen press in laundry, and under-house storage area
• Double lock up garage with back access to rear yard, and 15A circuit
• Private, fenced, low maintenance, child-friendly lawns featuring your very own herb & vegetable garden
• Elevated leafy position
• Family-friendly street
• Walking distance to public transport, local pool and easy access to Gateway Motorway
• Close to local bulk billing Doctor, shops and multiple schools
This wonderful home is absolutely pristine, and located in the highly coveted Mansfield State High catchment. An enviable position in the heart of Mansfield and only 13km from the CBD, this lovely home has the space, the appeal and the location you have been looking for.
Open this coming Saturday 22nd June at 1pm.
Email agent about 37 PAREENA CRESCENT, MANSFIELD QLD 4122























