STAGED, STYLED AND SOLD BY CAPE COD RESIDENTIAL
Charming Renovated Queenslander Cottage In The Heart Of Annerley
Welcome to this charming Queenslander cottage, an immaculately presented gem situated on a quiet street in the heart of the sought-after inner-city suburb of Annerley, Brisbane.
Retaining its original charm and character features, including polished timber floors, original French doors, VJ walls, picture rails, decorative archways, and breezeways, this beautiful family haven seamlessly blends timeless elegance with contemporary luxury.
Nestled in the vibrant, leafy suburb of Annerley, this wonderful residence enjoys a prime location, just moments from trendy cafes, bustling shopping centres and all conveniences.
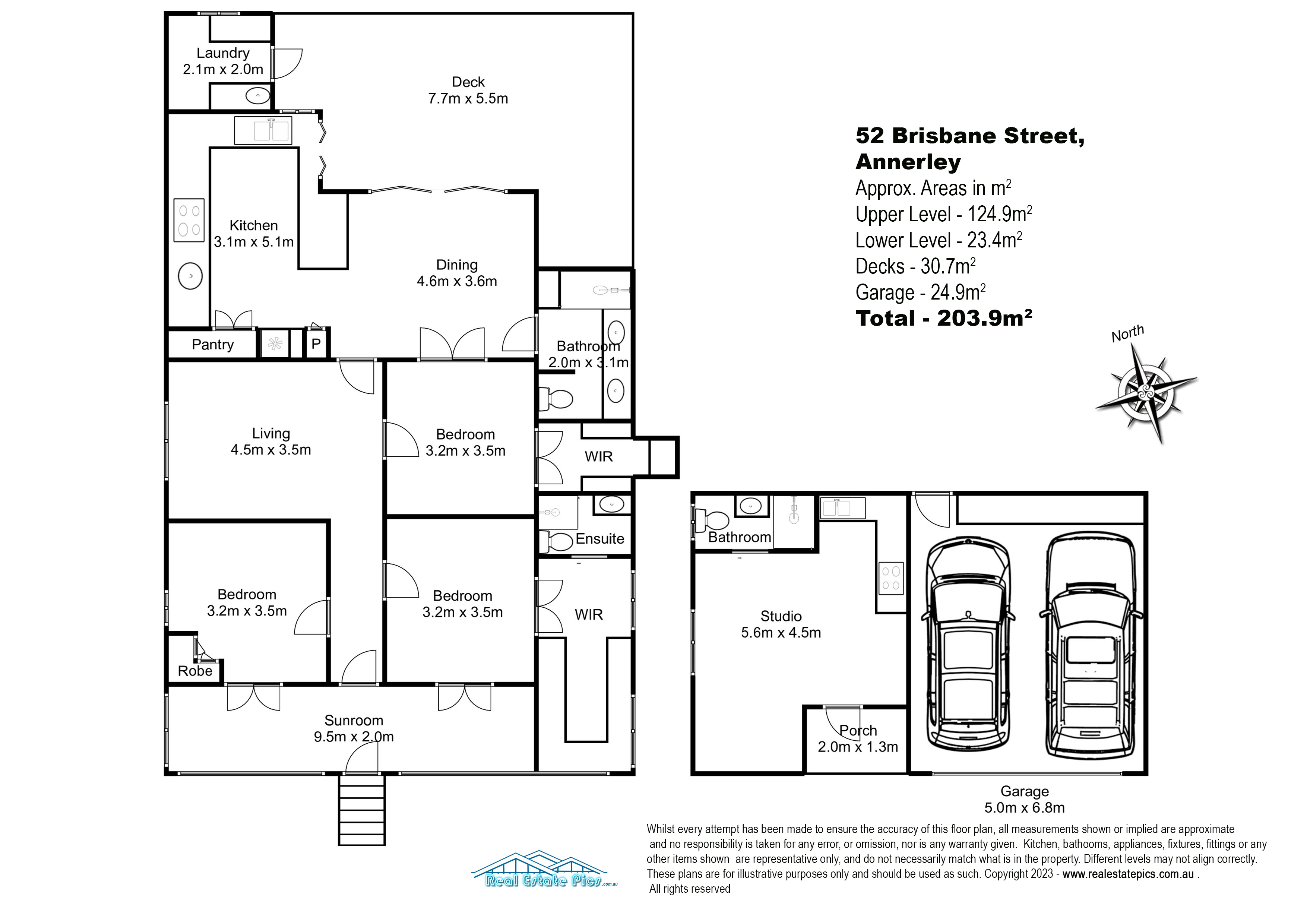
Upon entering, you’ll be captivated by the pretty sunroom, which showcases modern white plantation shutters, and original French doors. It provides space to relax and serves as an extra study or workspace, enhancing the versatility of the home.
The cozy living area flows effortlessly into the open-plan kitchen and dining space, exuding warmth and charm, providing an idyllic setting for memorable family moments and easy entertaining.
The spacious kitchen is a chef’s dream, featuring a 5 burner ILVE freestanding stove, stone bench tops, 2 sinks, an abundance of storage and a convenient breakfast bar.
A practical servery connects the kitchen to the rear entertaining deck, ensuring seamless indoor-outdoor integration.
The expansive rear deck offers a tranquil outdoor sanctuary, perfect for basking in Queensland’s glorious weather. Accessible through elegant bi-fold doors, this serene private space is the epitome of alfresco living, perfect for hosting intimate gatherings, indulgent outdoor dining, or unwinding with your favourite book.
Gently descending to lush lawns and a private leafy backyard, this versatile and inviting area further enhances the property’s appeal.
The upper level of the home presents three good-sized bedrooms, with two of them opening onto the versatile sunroom.
The master suite boasts a sleek modern ensuite and a luxurious walk-in robe, accessed through original French doors.
The third bedroom features a large walk-in robe, ensuring ample storage and convenience for the entire family.
A modern family bathroom, with bath, is located adjacent to this bedroom and services the upper level of the home.
A true standout feature of this unique property is the self-contained studio located beneath the main residence, encompassing the 4th bedroom, and offering versatility and privacy.
Featuring a kitchenette, bathroom, and separate entrance, this highly functional space presents the perfect opportunity for generating additional rental income or providing a secluded retreat for guests.
Summary Of Features:
* Renovated Queenslander cottage on a private 425m2 block
* Traditional features: original timber floors and French doors, VJ walls and picture rails, decorative archways and breezeways
* 4 bedrooms: 3 upstairs, 4th comprising a fully-self contained apartment on the lower level
* 3 bathrooms: family bathroom with bath, master ensuite and lower studio bathroom
* Spacious kitchen with stone bench tops, breakfast bar, ample storage, ILVE freestanding 5 burner stove and range, SMEG dishwasher, kitchen servery to deck
* Expansive, covered rear entertaining deck stepping down to lush lawns and private established gardens
* Self-contained studio apartment on lower level with separate entrance, kitchenette and bathroom
* Separate laundry room off deck
* Air conditioned
* 2 car remote garage with storage
Annerley offers a strong sense of community, with a mix of charming character homes, local boutiques, and a variety of dining options. The home is within walking distance to the PA Hospital, Buranda shops, and public transport options, as well as offering easy access to the SE Freeway, connecting you to the North and South Coasts.
With seamless access to the CBD, renowned universities, and prestigious schools, you will be immersed in the very best of Brisbane’s lifestyle offerings.
Prepare to be swept away by the elegance and charm of this enchanting property in the heart of Annerley and seize the opportunity to make this gorgeous Queenslander character cottage your forever home.
Email agent about 52 Brisbane Street, ANNERLEY QLD 4103





































































