STAGED, STYLED AND SOLD BY CAPE COD RESIDENTIAL
Superb Family Living In Brisbane’s Beautiful Bayside
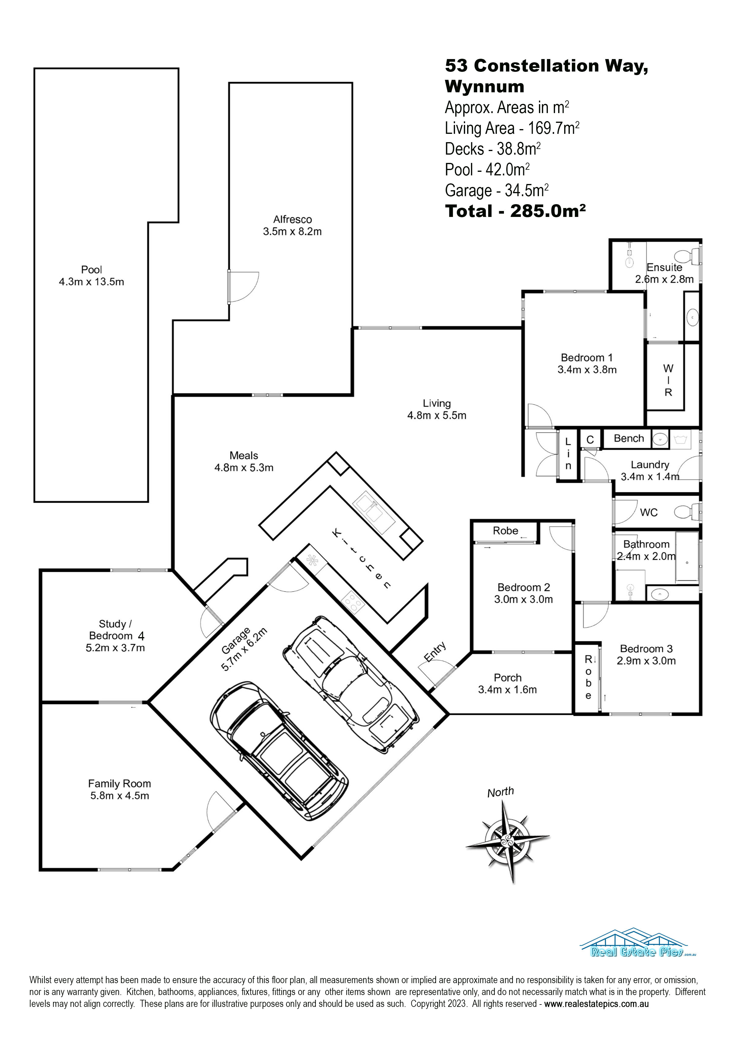
Set on a generous 800m2 block, within the beautiful bayside suburb of Wynnum, this well-maintained, low-set brick family home offers the perfect setting for an idyllic lifestyle for the growing family.
Upon entering, you’ll be greeted by spacious living areas thoughtfully separated from the well-positioned bedrooms, ensuring privacy and comfort for everyone. The heart of the home revolves around a modern kitchen, complete with quality appliances, ample storage, and a convenient home office nook, ideal for managing the busy family’s schedule or supervising homework.
The open-plan living and dining areas flow seamlessly to an inviting under-cover entertaining pavilion, where you can overlook the glistening 13m pool and well-established gardens. Beyond the property, an expansive nature reserve adds a touch of serenity and tranquility to the setting.
With child’s play in mind, the fully-fenced backyard offers a safe and secure space for the little ones to explore and have fun. Whether it’s a quiet family gathering or a grand celebration, this home provides an ideal space for entertaining.
The bedroom wing features three well-appointed bedrooms with private halls, situated away from the main living area, ensuring restful nights. The master suite is a private haven, boasting plush new carpet, a walk-in robe, and a designer ensuite with a double vanity and oversized shower. The two other bedrooms in this wing also feature new carpets and built-in robes, serviced by a sleek family bathroom with a bath.
For added flexibility, the oversized fourth bedroom, located past the kitchen, presents endless possibilities, such as a teenager’s retreat, guest wing, or extended family living. It leads to a spacious second living area with a separate entry, providing great separation of living for the busy family.
This wonderful home comes with desirable features, including air conditioning, a double remote lock-up garage with three additional driveway parking spaces, and a 5 KW solar power system to keep energy costs in check.
Enjoy the convenience of being close to quality schools like Guardian Angels Primary School and Iona College, as well as easy access to major arterial roads, bus and rail transport to the CBD, and the airport.
Furthermore, the property is within walking distance to the stunning Wynnum foreshore and boardwalk, where you can savour leisurely weekends exploring local markets, or indulge in the vibrant atmosphere of the nearby alfresco restaurants and cafes.
This outstanding family home offers a harmonious blend of functionality, space, and total comfort all on one sprawling level. Don’t miss this incredible opportunity to secure your piece of paradise in Wynnum.
Hurry, as this quality home will not last!
Email agent about 53 Constellation Way, WYNNUM QLD 4178































































